FN7-12型 系列戶內高壓負荷開關及熔斷器組合電器
概 述
FN7-12DR型交流高壓負荷開關是一種新型產氣式戶內高壓負荷開關,適用于交流50Hz,額定電壓10KV的三相交流電力系統中,作為開斷負荷電流及關合短路電流之用。
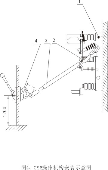
安裝及使用
額定參數
主要規格
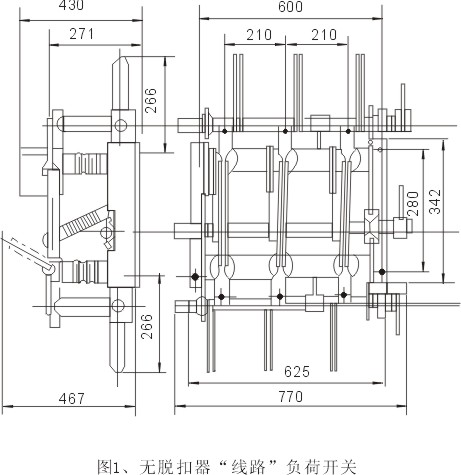
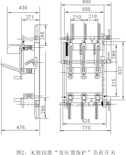
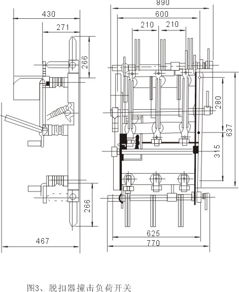
外形及安裝圖



FN7-12型 系列戶內高壓負荷開關及熔斷器組合電器
概 述
FN7-12DR型交流高壓負荷開關是一種新型產氣式戶內高壓負荷開關,適用于交流50Hz,額定電壓10KV的三相交流電力系統中,作為開斷負荷電流及關合短路電流之用。
安裝及使用
額定參數
主要規格
外形及安裝圖


